PIVOT

Rénovation haut de gamme d’un appartement de 129 m² à Paris

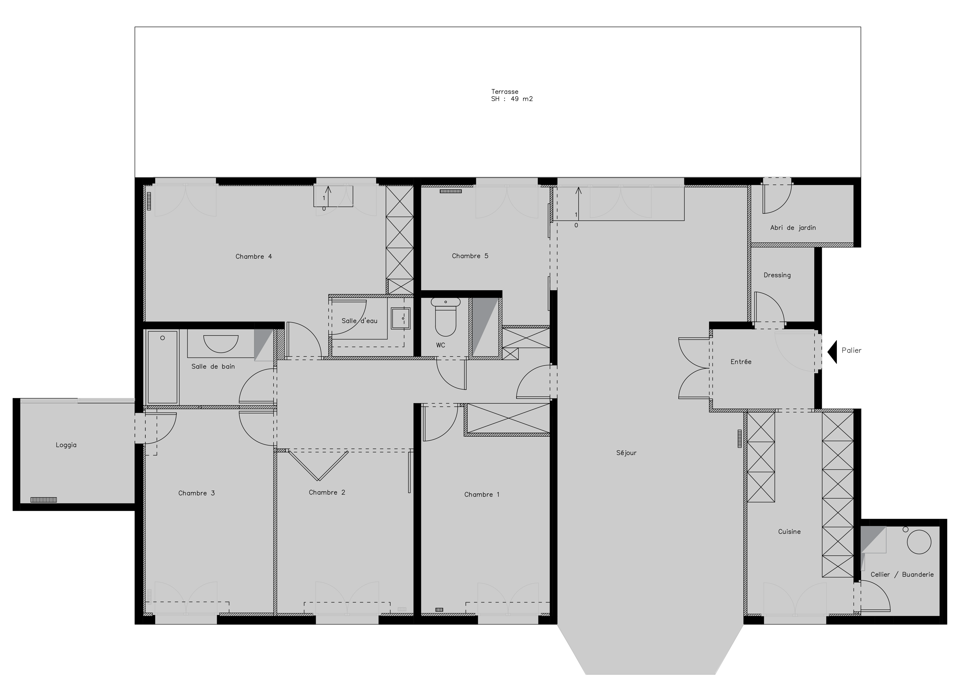
Plan du projet réalisé

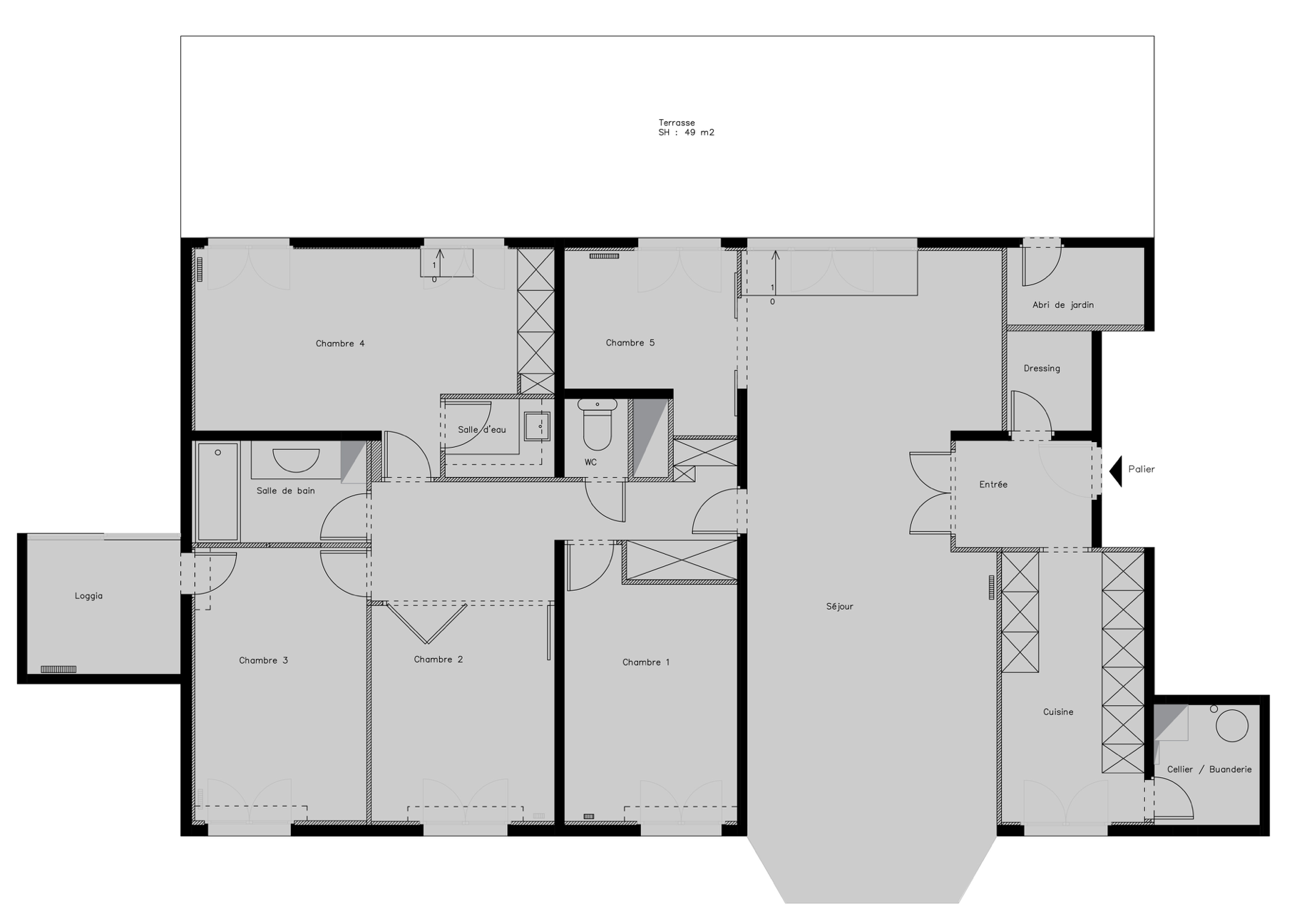
Plan avant travaux

Photographies état avant travaux


PIVOT


DATE : 2019 


CLIENT : Particulier


LIEU : Paris, 19ème arrondissement


SUPERFICIE : 129 m²


PROGRAMME : Remise à neuf complète et réorganisation totale d’un appartement nouvellement acquis par un couple de jeunes retraités


MISSION : Conseil avant achat, état des lieux, organisation de l'espace, proposition d'ambiance, réalisation des plans, conception du mobilier sur mesure


MONTANT DES TRAVAUX : 300 000 € TTC 


DURÉE DES TRAVAUX : 9 mois


Projet réalisé en association avec Florence Ancillon, architecte d’intérieur


L’appartement PIVOT appartient à un couple de jeunes retraités qui souhaitait quitter sa maison en banlieue ouest afin de s’installer à Paris intra muros. Assisté par nos conseils et une étude avant achat du potentiel du bien, il a acquis cet appartement des années 1970, dans le 19ème arrondissement. Le bien possède en effet des qualités rarement réunies dans la capitale : traversant, orienté est-ouest et doté d’un bow-window, il est très lumineux et offre un panorama sur tout le sud de Paris. Sa terrasse de près de 50m2 l’ouvre considérablement sur l’extérieur. Enfin, situé au 7ème étage, il est très silencieux. 

Notablement défraîchi avec son papier peint à fleurs, il était cependant nécessaire de remettre l’appartement au goût du jour. Surtout, la circulation peu réfléchie était à repenser puisqu’un grand couloir central fractionnait l’appartement en deux et gâchait une partie de la surface disponible.


DISCUSSIONS

Les discussions que nous avons eues avec les propriétaires ont été le point de départ de notre travail de conception. En effet, la notion de promenade y revenait comme un leitmotiv. Par exemple, les clients souhaitaient deux bureaux bien distincts où chacun disposerait de son intimité mais d’où il serait également facile de rendre des « visites » à l’autre. Sensibles à l’art et à la décoration, il semblait en outre important de créer une déambulation dans l’appartement qui, chaque jour, serait prétexte à en admirer la beauté.


CIRCULATION

Bâtissant notre réflexion sur les mots clés de circulation, de mouvement et de promenade, est né PIVOT. L’élément phare de ce projet est ce que nous avons intitulé le « pivot », à savoir un bloc de trois pièces central autour duquel s’articulent tout l’appartement et toute la circulation car on tourne autour pour accéder aux différents espaces. Le pivot est habillé de luxueux panneaux en chêne cendré Oberflex dont la couleur contrastante sert à l’identifier comme l’axe de l’appartement. Ses deux beaux angles arrondis assouplissent la circulation. Pour le réaliser, il a été nécessaire de créer deux ouvertures dans des voiles porteurs, ce qui a demandé des démarches administratives complexes (intervention d’un bureau d’études et d’un bureau de contrôle, constitution d’un dossier pour vote en assemblée générale de copropriétaires, souscription à une assurance dommages-ouvrage), démarches que nous avons coordonnées pour le maître d’ouvrage. Finalement, grâce au pivot, le plan est plus ouvert et, de linéaire, la circulation est devenue circulaire, plus fluide et, en un sens, plus vivante. Preuve en est que les propriétaires nous ont rapporté, après leur emménagement, que leur petit-fils aimait s’amuser à courir autour du pivot.


PERSONNALISATION

L’architecture d’intérieur est affaire de personnalisation et le projet PIVOT en est un exemple. Contrairement aux aménagements génériques qui, en l’occurrence, auraient probablement proposé des chambres d’amis ou conservé un simple couloir central, PIVOT est pensé pour correspondre exactement au mode de vie du couple de propriétaires, à ses goûts, à sa manière d’être, voire à sa manière de bouger et même d’interagir en tant que couple. 

Ainsi, l’entrée a été pensée pour accueillir un meuble de famille et est peinte en noir Off Black de Farrow & Ball afin de créer un effet de contraste et de surprise par rapport au reste de l’appartement qui, lui, est dans une harmonie de blancs et de gris. Elle donne accès au séjour, avec l’espace salle à manger d’un côté et un premier salon de l’autre. Une verrière en verre fumé est placée exactement en face de l’entrée : la perspective créée a pour but de montrer tout l’espace offert par l’appartement et permet de visualiser le pivot, tout en filtrant le regard vers l’arrière du logement qui, lui, accueille les pièces intimes (bureaux, salles de bain, chambre).

La cuisine, auparavant accessible depuis l’entrée, donne désormais sur le séjour : une verrière sur mesure en aluminium blanc au calepinage simple permet à la fois de fermer cette pièce et de baigner le séjour de lumière en créant une continuité entre les fenêtres de la cuisine et le bow-window du séjour. 

Le premier salon donne accès à un second, dévolu à la lecture et à la télévision pour laquelle nous avons dessiné un meuble sur mesure laqué. Ensuite, on a accès aux pièces du pivot, à savoir une salle de douche, un WC et un placard. La première a la spécificité de posséder une douche à angle arrondi ainsi qu’un hublot sur mesure offrant de la lumière en second jour ainsi qu’une vue sur la végétation de la terrasse. Ce châssis vitré a été placé à une hauteur adéquate afin de permettre la vue sur le dehors mais de préserver l’intimité de l’utilisateur de la douche. 

En tournant autour du pivot, on a successivement accès à un dressing sur mesure placé dans le couloir afin de « l’animer » et de n’en faire pas qu’un simple lieu de passage, puis à la chambre des propriétaires avec une seconde salle de bain et un dressing et, enfin, aux deux bureaux. L’un de ceux-ci est accessible par deux entrées, fermées par une porte coulissante pour l’une et par une porte dérobée constituée d’une bibliothèque sur roulettes, pour l’autre. Ce bureau peut donc être à la fois une pièce de circulation très ouverte mais aussi un lieu tout à fait intime quand les portes sont fermées. La porte dérobée renforce cette sensation d’intimité, contrairement à une porte traditionnelle.