INDUS - LE MANS

Remise à neuf complète d’un appartement de 75 m² destiné à la location, au Mans  

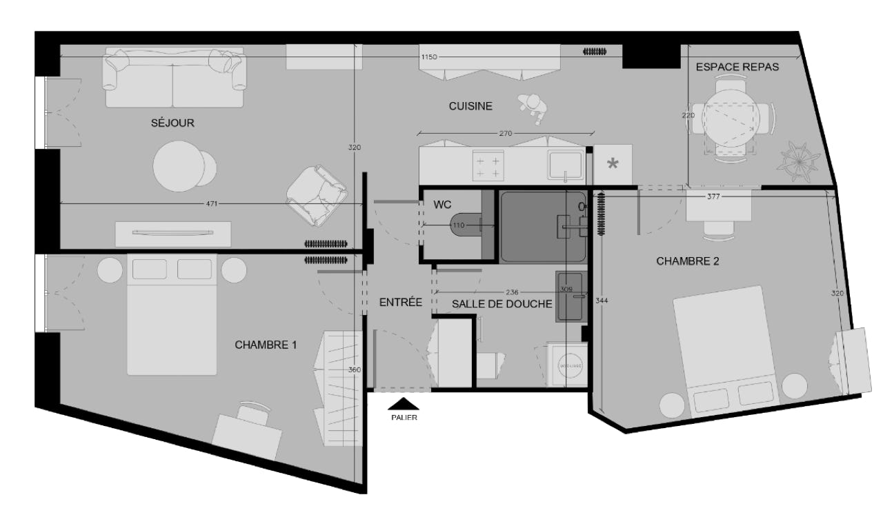
Plan du projet réalisé

Plan avant travaux

Photographies état avant travaux


INDUS - LE MANS


DATE : 2021


CLIENT : Professionnel (agence immobilière)


LIEU : Le Mans


SUPERFICIE : Appartement de 75 m²


PROGRAMME :

    •  Réorganisation du plan complet de l'espace afin de créer deux chambres

    •   Remise à neuf complète de l'appartement dans un style industriel


MISSION : Plans avant/après, vues 3D, choix des matériaux, plans de cuisine, planche mobilier, sélection de l’ensemble du mobilier et de la décoration


Photographies © IMMVEO


Compte tenu de l’évolution du marché immobilier, nous proposons une offre spécifique répondant aux besoins des investisseurs, qui souhaitent proposer des biens locatifs originaux et esthétiques, pour un coût de rénovation économique. Ainsi, nous collaborons régulièrement avec la société Immveo, qui propose un service d'accompagnement à l'investissement immobilier locatif dans plusieurs grandes villes de France, dont Le Mans, où se situe le projet présenté ici. 

S’il avait le charme de l’ancien avec son mur en pierre, cet appartement de près de 75 m² ne disposait que d’une chambre, éclairée en second jour qui plus est. Afin d’optimiser l’espace et qu’il dispose d’un maximum de couchages, nous avons donc créé une seconde chambre en divisant l’ancien double séjour en deux. La cloison de la chambre existante a été, elle, déposée et remplacée par des verrières en verre sablé, toute hauteur, afin d’apporter à la fois lumière et intimité. La cuisine a également été optimisée puisque la longueur de plan de travail a été multipliée par deux par rapport à l’existant, grâce à un double linéaire de rangement de 40 et 60 cm de profondeur. C’est un modèle IKEA, à la fois économique et esthétique.

Comme cet appartement était destiné à la location, il fallait que les photographies, donc sa décoration, accrochent l’oeil. Nous avons proposé un style industriel, à la fois photogénique et dans l’air du temps. Au beau mur en pierre, répondent les couleurs et les matériaux typiques de ce style : parquet et plan de travail imitation bois, suspensions en métal noir, cuir synthétique, carreaux «métro» en faïence blanche, et murs terracotta.

Pour le mobilier, le choix des grandes enseignes de décoration a été privilégié pour leur rapport qualité-prix. Afin de proposer un appartement « prêt à louer », nous avons non seulement préconisé le mobilier, mais aussi la décoration, la literie, l’électroménager et l’ensemble de la vaisselle.