INDUS - AMIENS

Remise à neuf complète d’un appartement de 70 m² destiné à la location, à Amiens

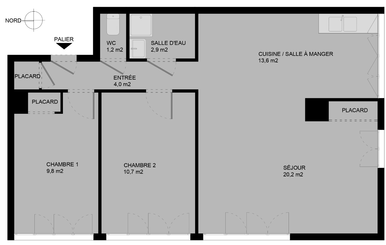
Plan du projet réalisé

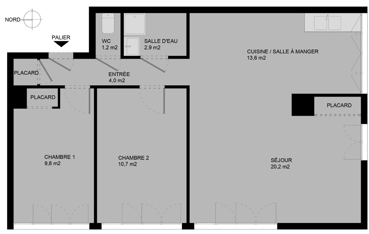
Plan avant travaux

Axonométrie projet


INDUS - LE MANS


DATE : 2021


CLIENT : Professionnel (agence immobilière)


LIEU : Amiens


SUPERFICIE : Appartement de 70 m²


PROGRAMME :

    •  Réorganisation du plan complet de l'espace afin de créer trois chambres

    •   Remise à neuf complète de l'appartement dans un style industriel


MISSION : Plans avant/après, vues 3D, choix des matériaux, plans de cuisine, planche mobilier, sélection de l’ensemble du mobilier et de la décoration


Photographies © IMMVEO


Compte tenu de l’évolution du marché immobilier, nous proposons une offre spécifique répondant aux besoins des investisseurs, qui souhaitent proposer des biens locatifs originaux et esthétiques, pour un coût de rénovation économique. Ainsi, nous collaborons régulièrement avec la société Immveo, qui propose un service d'accompagnement à l'investissement immobilier locatif dans plusieurs grandes villes de France, dont Amiens, où se situe le projet présenté ici. 

Cet appartement de 70 disposait déjà d’un plan cohérent, mais la cuisine était spartiate et il manquait une troisième chambre. Afin d’optimiser l’espace et qu’il dispose d’un maximum de couchages, nous avons donc créé une nouvelle chambre en divisant l’ancien séjour de 20 en deux. Elle dispose du placard existant, transformé en dressing. La cuisine, elle, autrefois linéaire, est aujourd’hui largement agrandie grâce à une configuration en L, qui offre une belle vue sur la cathédrale d’Amiens.

Comme cet appartement était destiné à la location, il fallait que les photographies, donc sa décoration, accrochent l’oeil. Nous avons proposé un style industriel, à la fois photogénique et dans l’air du temps : parquet et plan de travail imitation bois, suspensions en métal noir, cuir synthétique, carrelage type carreaux de ciment, et papier peint en trompe-l’œil « briques ». Tout en offrant les mêmes fonctions (couchage, rangement et bureau), chaque chambre a sa propre couleur et sa propre décoration afin de l’individualiser avec peu de moyens : murs anthracite pour la première, tête de lit peinte d’un motif géométrique couleur terracotta pour la deuxième, etc.

Pour le mobilier, le choix des grandes enseignes de décoration a été privilégié pour leur rapport qualité-prix. Afin de proposer un appartement « prêt à louer », nous avons non seulement préconisé le mobilier, mais aussi la décoration, la literie, l’électroménager et l’ensemble de la vaisselle.