COUTEAU SUISSE

Remise à neuf complète et optimisation d’un studio de de 17 m² à Paris, suite à un incendie

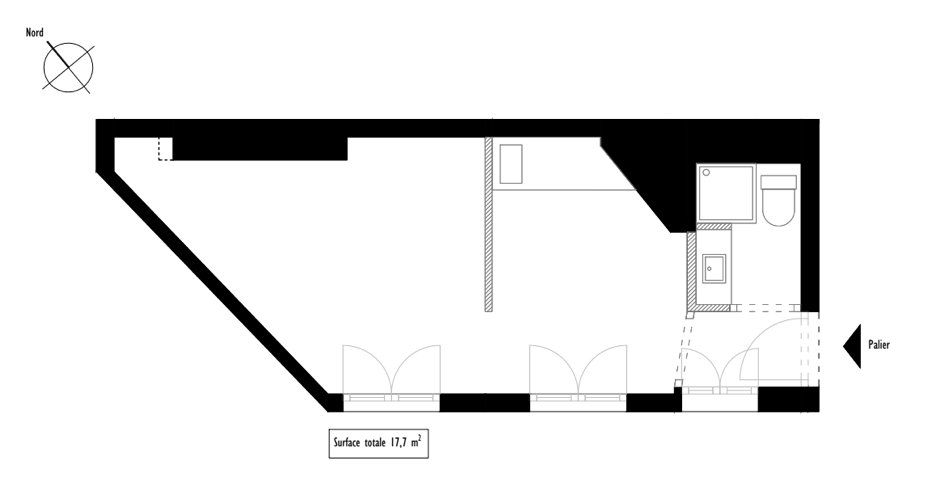
Plan du projet réalisé

Plan avant travaux

Photographies état avant travaux


COUTEAU SUISSE

 

DATE : 2020 

 

CLIENT : Particulier

 

LIEU : Paris, 18ème arrondissement

 

SUPERFICIE : 17 m²

 

PROGRAMME : Remise à neuf complète et optimisation d’un studio suite à un incendie

 

MISSION : État des lieux, organisation de l'espace, proposition d'ambiance, réalisation des plans, conception du mobilier sur mesure

 

MONTANT DES TRAVAUX : 70 000 € TTC 

  

Projet réalisé en association avec Florence Ancillon, architecte d’intérieur


Le propriétaire de ce petit studio nous sollicita suite à un incendie qui avait entièrement détruit son logement : les murs étaient alors couverts de suie, toutes les menuiseries, y compris les fenêtres, avaient brûlé, les appareillages électriques avaient fondu et le faux-plafond s’était effondré. Bien sûr, l’objectif de la rénovation fut de remettre le logement en état mais aussi de profiter de ce sinistre pour en repenser le plan et optimiser ce minuscule 17 m².


OPTIMISATION


Avant travaux, le studio était cloisonné en deux pièces : d’un côté, la cuisine et, de l’autre, la pièce de vie faisant office de séjour et de chambre. Si ouvrir systématiquement n’est pas toujours judicieux, il était ici approprié, compte tenu des dimensions du lieu, de démolir la cloison existante afin de créer une grande pièce principale de 14 m² environ. Ce décloisonnement permit, en outre, de mettre en valeur l’enfilade de trois fenêtres, très rare dans ce type de bien, et de profiter pleinement de la lumière apportée par la belle exposition sud-ouest. 


Le propriétaire souhaitait un lit escamotable et de nombreux rangements pour dissimuler deux grandes valises, un climatiseur mobile, l’électroménager, etc. En outre, amateur de pâtisserie, il avait besoin d’une cuisine pratique.  

Pour répondre à ce cahier des charges, nous avons imaginé un « Couteau suisse », c’est-à-dire un grand meuble sur mesure accueillant toutes les fonctions habituelles d’un logement, c’est-à-dire cuisiner, dormir et ranger. Se développant sur toute la longueur du plus grand mur du studio, il permet en outre de cacher deux boisseaux de cheminée disgracieux et de s’adapter au plan atypique du logement. 


Au niveau de la cuisine, le meuble « Couteau suisse » accueille l’électroménager demandé par le propriétaire (un four Kitchenaid, un réfrigérateur et un grand congélateur) mais dissimule aussi deux poubelles coulissantes, une hotte à extraction, un lave-linge et même un égouttoir à vaisselle dans un meuble haut. Le robinet mitigeur, quant à lui, est équipé d’une douchette extractible. 

À côté de la cuisine, le meuble dissimule l’espace nuit. Le lit escamotable est caché par une porte battante à deux vantaux qui, une fois ouverts, forment une sorte de paravent : il nous paraissait important de structurer la pièce principale en séparant la « chambre » du reste du studio afin de la rendre le plus intime possible. La tête de lit offre également des étagères et un caisson de rangement pour les oreillers. 

D’autres rangements occupent l’extrémité du meuble, en particulier un petit « dressing » avec une tringle télescopique et un grand placard dans l’angle du studio. 

Enfin, d’un point de vue technique, le « Couteau suisse » dissimule le chauffe-eau et la gaine électrique. 


L’objectif d’optimisation a été le même dans la salle de douche et l’entrée.

Dans la salle d’eau, la douche a été agrandie au maximum et possède désormais un receveur confortable de 90 x 70 cm. Un meuble de rangement sur mesure surmonte le bâti-support des toilettes et une porte coulissante à vitrages dépolis laisse passer la lumière en second jour, tout en facilitant la circulation dans cette minuscule pièce de moins de 2 m².

Enfin, l’espace est exploité jusque dans l’entrée. En effet, un miroir et un petit vide-poche répondent aux fonctions traditionnelles de cette pièce et un étendoir à linge escamotable est même dissimulé dans un caisson suspendu au-dessus de la porte d’entrée. 


MATÉRIAUX ET COULEURS 


Afin d’accentuer la luminosité de l’appartement et la sensation d’espace, nous avons choisi des matériaux simples qui créent une ambiance pure. Le sol est en béton ciré, il unifie et agrandit le studio. Il est en harmonie avec l’agencement, réalisé en stratifié imitation bouleau, une essence claire et chaleureuse. La couleur accent est un orange vif. Il est notamment utilisé sur tout l’espace nuit afin de le séparer encore plus du reste du studio et créer un effet de surprise lorsqu’on en ouvre la porte. On le retrouve également, en touches plus sobres, dans le plan de travail en terrazzo de la cuisine. L’appartement se situant dans le quartier de Barbès, cette couleur vive est aussi un écho aux tissus chamarrés qu’on peut y voir dans les magasins africains.


CONFORT THERMIQUE


Pour terminer, cette rénovation a été l’occasion d’améliorer l’isolation thermique du studio, auparavant de faible qualité. Se situant sous les combles, les faux-plafonds ont été remplis de laine minérale et, avec l’accord de la copropriété, les menuiseries extérieures ont été équipées de volets électriques. Pour l’été, une fenêtre est munie d’un percement spécial pour recevoir l’évacuation d’air d’un climatiseur mobile.