BLACK BOX

Remise à neuf complète d’un appartement de 36 m² à Paris et création d’un espace nuit 

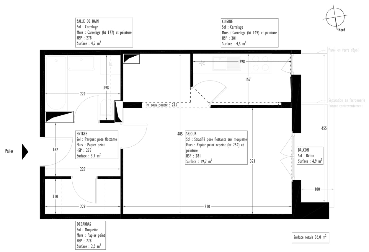
Plan du projet réalisé

Plan avant travaux

Photographies état avant travaux


BLACK BOX


DATE : 2018 


CLIENT : Particulier


LIEU : Paris, 3ème arrondissement


SUPERFICIE : Appartement de 36 m²


PROGRAMME : 

  • Réorganisation du plan complet de l'espace afin de mieux équilibrer les surfaces et de créer un espace nuit  
  • Remise aux normes et remise à neuf complète de l'appartement dans un style contemporain, simple et économique


MISSION : État des lieux, réorganisation générale de l'espace, proposition d'ambiance, réalisation des plans et dessins techniques, conception de mobilier sur mesure


MONTANT DES TRAVAUX : 50 000 € TTC 


DURÉE DES TRAVAUX : 2,5 mois


Projet réalisé en association avec Florence Ancillon, architecte d’intérieur


Avant travaux, cet appartement situé dans un bel immeuble Art déco, à deux pas du Centre Pompidou, était en mauvais état : installation électrique vétuste, porte-fenêtre ne fermant plus, tuyau d'évacuation fissuré, parquet abîmé... De plus, l'espace était mal organisé et ne disposait pas de chambre. Le propriétaire souhaitait donc le remettre à neuf afin de pouvoir le louer : l'objectif était de rationaliser le plan, créer un espace nuit et moderniser l'ensemble de l'appartement.

Dans l'entrée, traitée en peinture noire Tollens Calligraphie, un banc sur mesure permet désormais de se déchausser tandis qu'un meuble vide-poches offre des rangements. Un nouveau dressing avec porte coulissante a été aménagé. La salle de bain, elle aussi, a été entièrement remise à neuf : les toilettes ont été déplacées afin de gagner en ergonomie et un grand placard accueillant la machine à laver a été créé. 

Le cube accueillant l'espace nuit est la grande nouveauté de l'appartement. Un motif géométrique sur l'une de ses faces permet la transition entre l'entrée et les espaces de vie. 

L'ancienne cuisine a été totalement déposée et déplacée : entièrement équipée, elle a été traitée en blanc et dispose d'une crédence en miroir afin de la rendre la plus discrète possible. Ainsi, les espaces repas et salon prennent tous deux place le long des portes-fenêtres afin de profiter de la lumière et, surtout, de la vue à 180° sur Paris. Enfin, à l'extérieur, une ferronnerie coupant auparavant la circulation a été déposée afin d'offrir un balcon entièrement filant.